Support

Lorem ipsum dolor sit amet:

24h / 365days

We offer support for our customers

Mon - Fri 8:00am - 5:00pm (GMT +1)

Get in touch

Cybersteel Inc.
376-293 City Road, Suite 600
San Francisco, CA 94102

Have any questions?
+44 1234 567 890

Drop us a line
info@yourdomain.com

About us

Lorem ipsum dolor sit amet, consectetuer adipiscing elit.

Aenean commodo ligula eget dolor. Aenean massa. Cum sociis natoque penatibus et magnis dis parturient montes, nascetur ridiculus mus. Donec quam felis, ultricies nec.

Have any Questions? +01 123 444 555

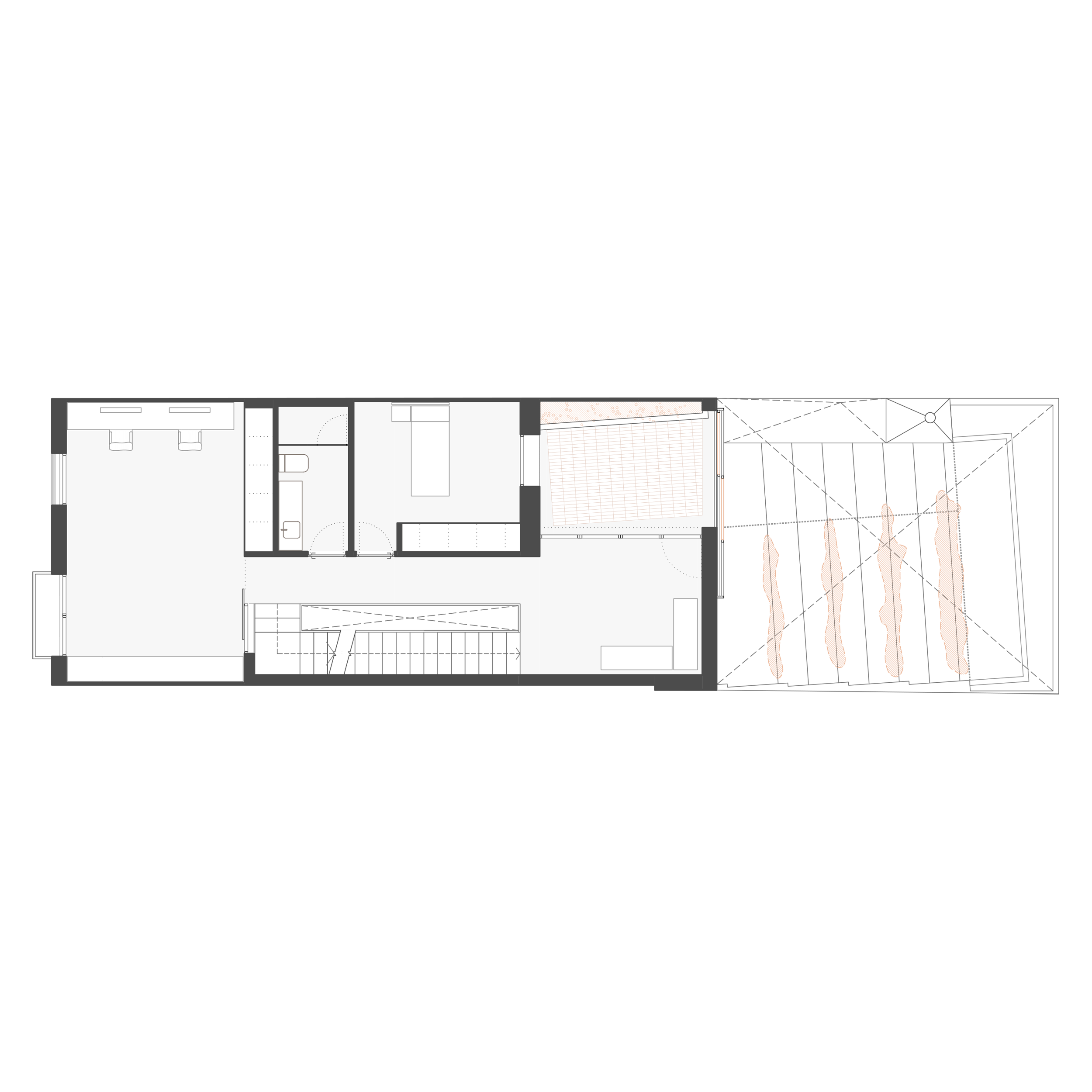
Casa Escoles Velles

CASA ESCOLES VELLES

SITUACIÓN:
Silla (Valencia)

FECHA:
2021

FASE:
En proceso
 

Entre medianeras

Se trata de una vivienda entre medianeras situada en el caso histórico, y rodeada por 3 lados de edificaciones de mayor altura. Frontalmente cuenta con espacio dotaciones deportivas y escolares con sus zonas arboladas.

Adaptación tradicional

Todo el proyecto se entiende como una adaptación de los sistemas y formas constructivos tradicionales a una nueva forma de hacer y vivir.

La fachada principal se compone de huecos verticales donde el de mayor dimensión presenta un abocinado y un voladizo superior para enfatizar el acceso a la vivienda.

En el interior, se utilizan materiales tradicionales de construcción, como es el ladrillo caravista manual como pavimento para conectar el interior del comedor con el exterior del patio. La estructura está compuesta por acero y cerámica, adaptando este sistema tradicional de forjado y dejándolo como acabado de las zonas más nobles de la casa.

Eje de desarrollo

La vivienda pretende mostrar constantemente sus máximas dimensiones, tanto en longitud, anchura y altura. En cada planta se pretende poder conectar el patio interior con la fachada principal, se intenta que el exterior se extienda hacia el interior, creando patios interiores que controlen de edificaciones vecinas y la iluminación natural.

Volver

Copyright 2026 Arquiquattro®. All Rights Reserved.